
XYZ DEMO Aktuality projektu DEMO U Slunce
XYZ DEMO lokálni aktualita Dům U Slunce
Vítejte na ukázkovém projektu Alloggi.cz XYZ DEMO. Zde najdete všechno, co Vás zajímá ohledně vlastností Pagebuilderu a Polygonbuilderu. V Globální stránce je ukázka všech bloků, které Alloggi.cz nabízí. Toto jsou ukázkové stánky, poskládané touto technologií.
Polygonbuilder umožňuje lehce vytyčovat zónu zájmu. Zóny jsou celky čtyři. Základní zóna kde můžete nahrávat celé čtvrtě, kam umísťujete jednotilivé bytové domy, bloky budov a nebo pozemků. NNebo můžete rovnou přiřazovat samostatné domy a nebo pozemky. Druhé úrovně jsou samotné bytové domy, kde přiřazujete patra a nebo do obytných či pozemkových zón jednotlivé domy. Třetí úroveň josu patra. Specifika pro výškové stavby, které mají více jednotek na patře. Poslední úrovní jsou přiřazené konkrétní byty, domy a nebo pozemky s jejich vlastnostmi, popisem obrázky dokumenty ke stažení a cenou. Specifika jsou tzv. subpolygony, které umožňují vytvářet další polygony a přidávat je je hlavnímu polygonu. Například byt a oddělený sklep.


XYZ DEMO lokálni aktualita Dům U Slunce
3 fotek
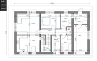
Půdorys
PůdorysXYZ byty
Plocha podlaží: 100,0 m²
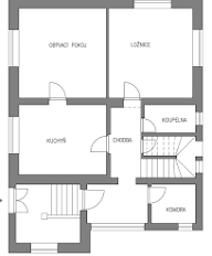
XYZ DEMO kuchyň, obývací pokoj, ložnice
Kalkulačky bank: