Byt 2+1 č. 1.06 Volný
Projekt XYZ byty · XYZ DEMO Město
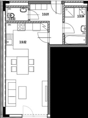
Vizualizace a půdorysy
Dispozice
2+1
Typ
2+1
Kategorie
apartment
Plocha
42.40 m²
Balkon / terasa
15.00 m²
Sklep
20.00 m²
Orientace
Z
Podlaží
1.NP
Cena
2 450 000 Kč
Máte zájem o tento byt?
Kontaktujte náš obchodní tým pro více informací nebo nezávaznou poptávku.

